Construction Permits Issued for Single-Family Residence at 2622 East Harold Street in Olde Richmond
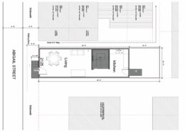
Residential building permits have been issued for the construction of a three-story single-family rowhouse at 2622 East Harold Street in the Olde Richmond neighborhood in Philadelphia’s River Wards district. The attached structure will rise on the southwest side of the block between Almond Street and East Thompson Street. The building will hold 2,080 square feet of interior space and will offer a roof deck. The development team includes Here’s the Plan, LLC as the architect and Qazim Kupa as the contractor.





